東京の仲介手数料半額・無料の物件情報 > (戸建(売買))地域から探す > 北区 > 北区王子本町2丁目戸建 > 物件詳細
◆◇◆仲介手数料無料!◆◇◆
「北区王子本町2丁目戸建」のご紹介
○2駅4路線利用可能!都心の主要駅に好アクセス!
住宅ローンからお引渡しまで、
専属の宅建士がサポートさせていただきます!
ご案内可能です!
03-5341-4693までお気軽にお問合せ下さい♪











(※元利均等方式 金利5.00%まで ※返済年数5~50年まで入力できます)
(※ボーナスは年2回で計算しています。1000万円まで入力できます)
(※物件購入時、その他諸費用が発生する場合がございます)
| 所在地 | 東京都北区王子本町2丁目 | ||
|---|---|---|---|
| 交通 | |||
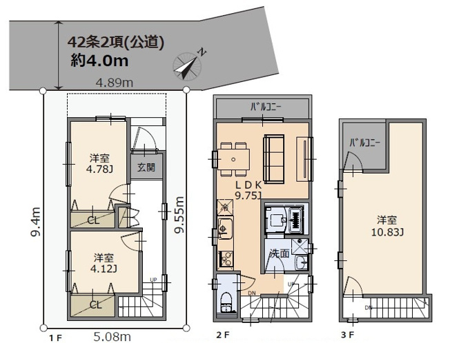
| 間取り/詳細 | 3LDK/ | 建物面積(坪数) | 75.15㎡(22.73坪) |
| 価格 | 4,150万円 | ||
| 駐車場/月額料金 | -/- | ||
| 土地の敷金/保証金 | -/- | 借地料/借地期間 | -/- |
| 土地権利 | 所有権 | 土地面積(坪数) | 48.01㎡(14.52坪) |
| 傾斜地部分面積 | - | 路地状敷地 | - |
| 私道負担面積/セットバック | -/無 | 高圧線下面積 | - |
| 地目/地勢 | -/- | 接道状況 | 一方(北西 公道 4.0m 間口 4.8m) |
| 建ぺい率/容積率 | 60%/200% | 用途地域 | - |
| 都市計画 | - | 種別/構造 | 新築一戸建/木造 |
| 階建 | 3階建 | 築年月(築年数) | 2025年 5月 (新築) |
| 総区画数/販売区画数 | 1区画/1区画 | 向き | 北西 |
| 現況 | 完成済み | その他の法令上の制限 | - |
| 取引態様/引渡時期 | 仲介/相談 | 建築確認番号 | 第24UDI1T建00482-2号 |
| 物件番号 | 98774983 | 取引条件の有効期限 | 2025年11月24日 |
| 設備条件 |
|
||
| 備考 |
┏┓━━━━━━━━━━━━━━━━━━━━━━━━━━━━━━ ┗□【物件概要】 ━━━━━━━━━━━━━━━━━━━━━━━━━━━━━━━ ■主寝室10帖 ■2階リビング ■4路線利用可 *:☆。:*:☆。:*:☆。:*:☆。:*:☆。:*:☆ 私達のモットー それは・・・ 皆さんに東京エリアのマンションや戸建、土地を「お得に売買」して頂きたい。 又、皆さんそれぞれに合った良い物件を選んで頂きたい。 そんな気持ちの分かる不動産屋さんです! 真心を以て一つ一つの事に対応させて頂きます。 どんな些細な事でも構いませんので、不動産に関する事、 何でもご相談ください。 お客様からのご連絡、心よりお待ち申し上げます。 【良くあるご質問】 Q:他の物件もRENOLAZEさんで仲介手数料を安くできますか? A:はい、可能です。お気軽にご相談ください! Q:今の自宅を売却する前に新たにローンを申請できますか? A:はい、可能です。お気軽にご相談ください! Q:売却する時の仲介手数料も安くできますか? A:はい、可能です。お気軽にご相談ください! 弊社では購入時・売却時、どちらも諸費用を抑える事が可能です。 |
||
| 取扱会社 |
|
||
| QRコード |
このQRコードを読み取ることで、スマホでも物件情報を確認できます。 |
||
※地図上に表示される物件の位置は付近住所に所在することを表すものであり、実際の物件所在地とは異なる場合がございます。
北区の町名から探す